Maj 2025
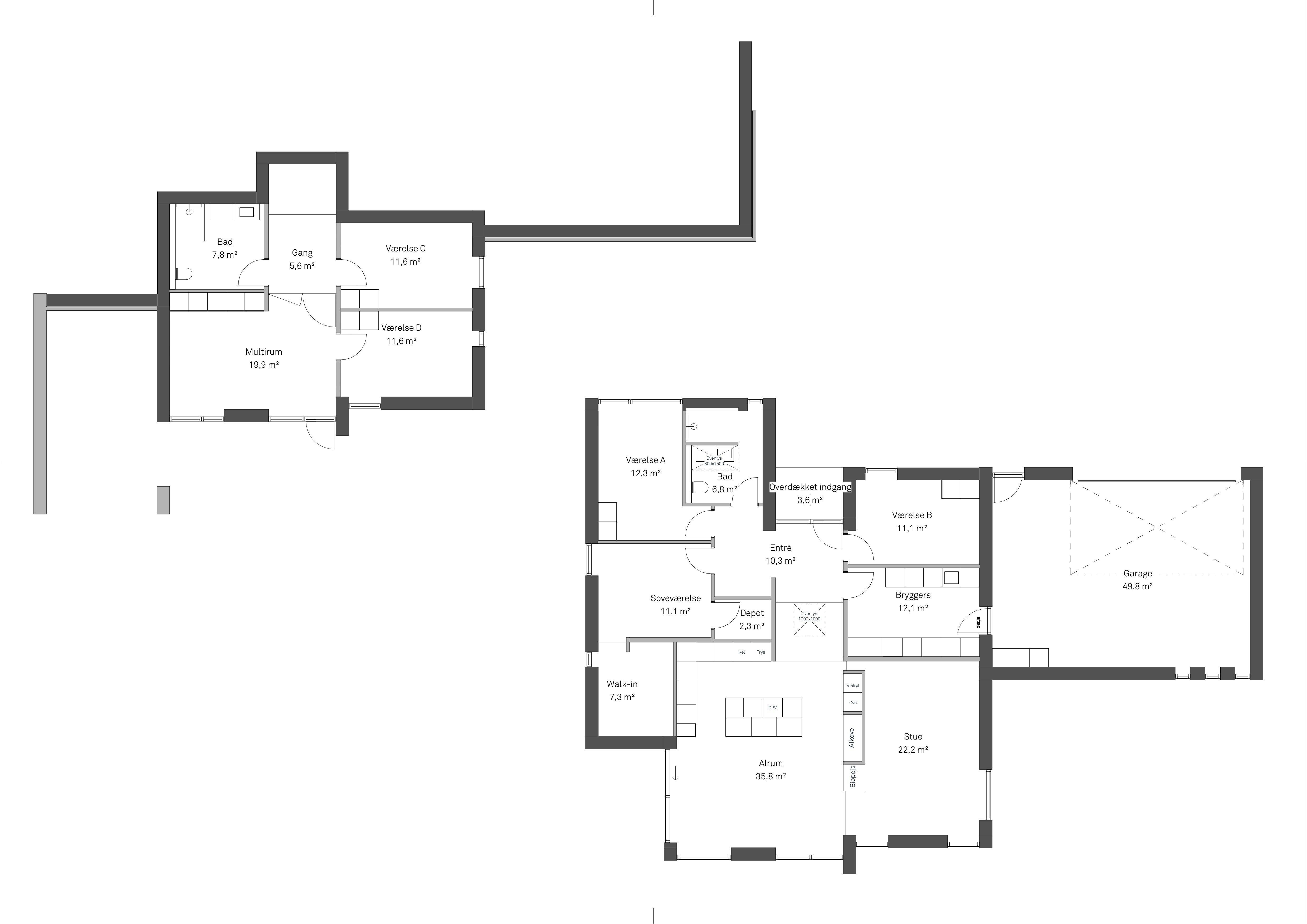
Grundplan
Husfakta
Bolig: 240 m²
Garage: 61 m²
Overdækket: 29 m²
Mursten: RT 473 Como og RT 548 Hera
Udv. træ: Keflico Thermory ThermoWood fyr
Vinduer: Velfac
Lofter: Knauf Danogips 60x60 cm
Klinker: Ghost Rope 90x90 cm
Klinker væg: Ghost Taupe 60x120 cm
Gulv: Plank Nature Oak
Vægge: Vandskurede
Indv. døre: Swedoor egetræ
Inventar: Svane Aalborg
Armaturer: Cassøe
Indvendig trappe: Trappefabrikken
Sag: 1572
Eksteriør galleri
Alle vores huse designes individuelt til byggegrunden og til de mennesker, der skal bo og leve i huset. Her får du inspiration til arkitekturvalg, facader, vinduer, havemiljø og udendørs materialevalg.
Interiør galleri
Der er lagt meget energi i at opnå den ønskede følelse og stemning indenfor i hvert enkelt rum. Lad dig inspirere af rumfornemmelser, materialevalg og de unikke detaljer der er valgt til dette hjem.
Denne spændende arkitekttegnede bolig i parterreplan er skabt i tæt samspil mellem familien og KFS Boligbyg. Boligen er opført som halvt selvbyg, hvor vi som byggefirma har opført råhuset, mens bygherre selv har stået for den indvendige færdiggørelse. Her mødes funktionalitet og kvalitet i et unikt og æstetisk arkitektonisk udtryk.
Vi byder velkommen indenfor på 240 kvadratmeter opført i parterre plan. Her er terrænets naturlige fald udnyttet til fulde på en skrående grund, hvor stueplan er i niveau med villavejen, mens en del af boligen er under jordniveau og den anden del er over terræn med en ekstra etage ovenpå. Det giver et spændende arkitektonisk udtryk, hvor der samtidig er direkte udgang til udeområderne fra begge etager.
KFS Boligbyg har stået for opførelsen af råhuset med mursten, tag, vinduer og loftkonstruktion. Facaden fremstår med en harmonisk kombination af to typer mursten, der giver spil og skaber dynamik i den store facade. Træterrassen i plan med første salen tilfører varme og blødhed, mens de store vinduespartier med sorte vinduesrammer giver et fantastisk lysindfald. Dobbeltgaragen er integreret med boligen, så det er nemt at træde indenfor i tørvejr. Havesiden byder på en stor stenterrasse, hvor både morgen- og aftensolen kan nydes.
I niveau med terrænet træder man indenfor i en lys og rummelig entré, hvor boligens fulde højde er udnyttet. Her har familien indtænkt gode opbevaringsløsninger med en indbygget bænk og skabe i olieret egetræ fra Svane. Herfra er der også adgang til soveværelse, badeværelse og to børneværelser, hvor det olierede egetræ går igen på døre og karme fra Swedoor.
Herfra leder trappen op til boligens hjerte – det store, åbne køkken-alrum med kig udover det smukke landskab gennem de store vinduespartier. Køkkenet er valgt i varme, jordnære toner og rummer både en siddeniche og et hyggeligt kaffehjørne. Biopejsen skaber karakter og stemning i rummet, og den fungerer samtidig som en rumdeler ind til stuen. På den måde kan pejsen nydes fra både køkken og stue.
Stuen ligger i direkte forlængelse af køkken-alrummet, men da sofaområdet er placeret bag væggen, bliver det til en zone for sig, der inviterer til ro og nærvær. Materialevalget med egetræsgulvet og akustiklofterne med de indfræsede LED-bånd giver et elegant og strømlinet udtryk, der skaber nogle gode og diskrete rammer til parrets æstetiske sans for indretning.
Forenden af trappen er underetagen, som er placeret i parterre. Den er delvist nedgravet, men fremstår i niveau med terrænet mod havesiden, hvilket giver direkte adgang til haven og mulighed for et fantastisk lysindfald. Underetagen er indrettet som en afdeling for sig med et stort mulitrum, badeværelse og to værelser. Huset emmer af smagfulde detaljer, der understreger husets gennemførte æstetisk.
Grunden er udnyttet med omtanke, så huset falder naturligt ind i landskabet og skaber sammenhæng mellem inde og ude. Her er tale om et boligprojekt, hvor samarbejdet mellem KFS Boligbyg og en engageret og detaljeorienteret bygherre har ført til et unikt, moderne hjem med stærk personlighed og høj kvalitet.
Her på siden kan du finde inspiration til din egen boligdrøm – se flere projekter, bestille vores inspirationskatalog eller kontakte os for en uforpligtende snak.
Udvalgte huse
Bliv inspireret af arkitekturer, indretning og valg af materialer til dit drømmehus. Alle huse er bygget af KFS.























