April 2025
Grundplan
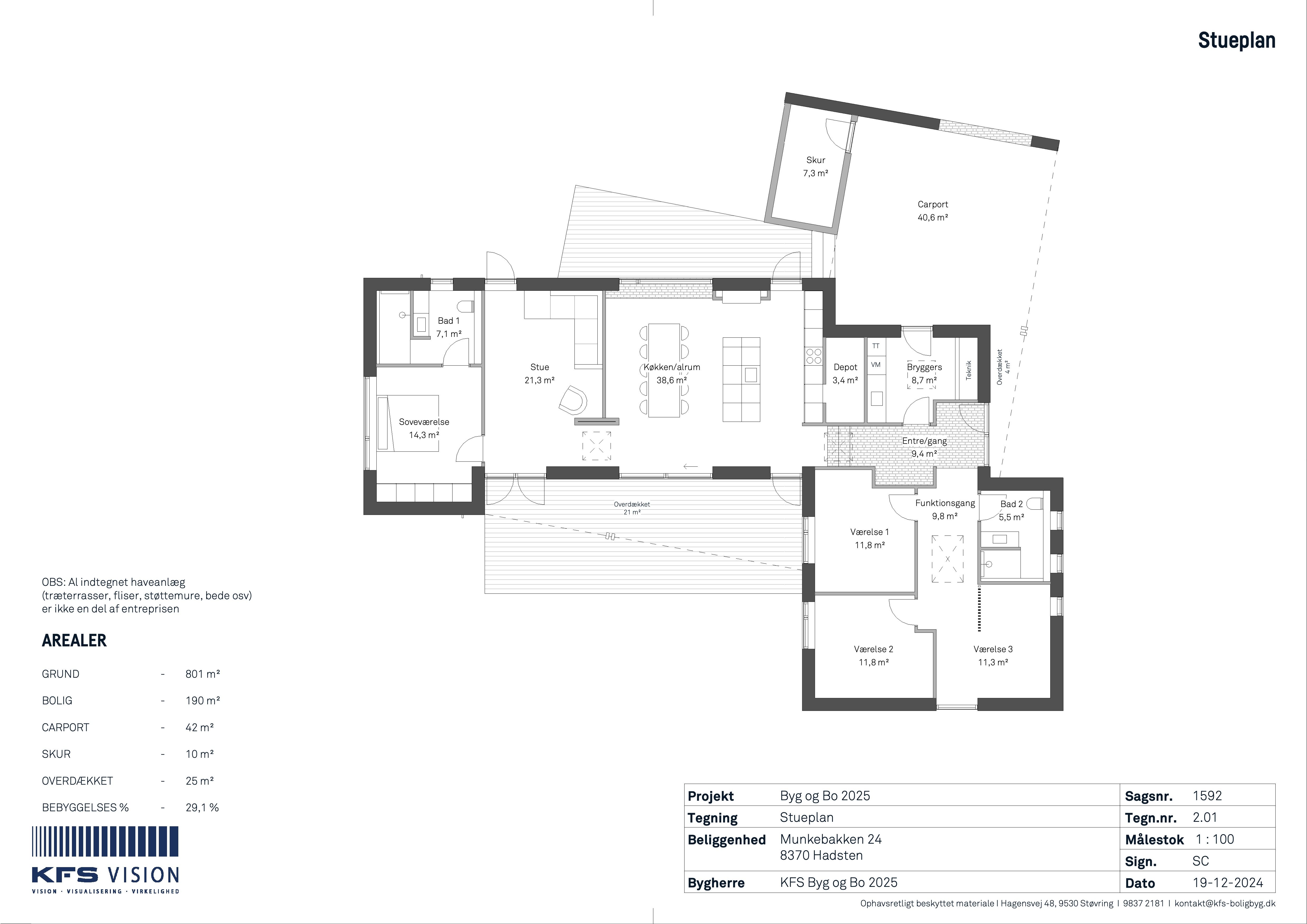
Husfakta
Bolig: 190 m²
Vognly: 43 m²
Skur: 10 m²
Overdækket: 25 m²
Mursten: D72, Petersen Tegl
Udv. træ: TGV-profil med midterspor, Kjellerup
Vinduer: Velfac 200 Energy
Ovenlys: Velux 3 x 90x90, 1 x 150x100
Lofter: Ultrafin Troldtekt, farve Clay
Klinker: 120x120 cm Amaranto Brown
Gulv: PU-gulv, farve NCS-kode S2005-Y20R
Vægfarve: S2005-Y20R
Indv. døre: Massive Stable, Swedoor
Inventar: Invita Aalborg
Armaturer: Quooker og Hans Grohe
Sag: 1592
Eksteriør galleri
En arkitekttegnet bolig med markant æstetik og sans for detaljer. Kombinationen af tegl, træbeklædning og skrå linjer skaber et moderne udtryk, med både carport og overdækket terrasse integreret elegant i helheden.
Interiør galleri
Indvendigt mødes man af varme materialer, store ovenlysvinduer og gennemtænkte løsninger. Husets hjerte er det lyse køkken-alrum med teglbænk, kaffe-niche og adgang til haven – alt sammen skabt til hverdagsliv og hygge.
Oplev en attraktiv arkitekttegnet bolig med smukke detaljer både ude og inde; et kvalificeret og gennemtænkt bud på et moderne hjem, hvor høj kvalitet, funktionalitet og æstetik er højt prioriteret.
Vi byder velkommen i 190 m² skøn drømmebolig. Huset fremstår med en veldefineret arkitektonisk profil, der udstråler æstetik og velovervejede løsninger. Her er valgt et eksklusivt facadedørsparti, som understøttes af teglsten og søjler i kombination med træbeklædning. Carporten er skråtstillet på boligen og fortsætter i en overdækning over facadedøren.
Mod havesiden er en stor overdækket træterrasse, hvor den skrå linje gentages og bidrager smukt til helhedsudtrykket. Her er plads til udehygge med børn, venner og familie.
I entreen har vi etableret en niche med plads til overtøj og sko. Gulv og trin, der fører til køkken-alrum, er lavet i facadetegl og bidrager til en helt speciel oplevelse, som understreges af lyset, der strømmer ned gennem store ovenlysvinduer. Boligens hjerte er et stort køkken-alrum med højt til loftet og en lækker bænk i tegl. Her kan hygges og dækkes op til gæster. Køkkenet er holdt i varme farver, og vi har skabt rum til en lækker kaffe-niche. Fra køkken er der adgang til haven på begge sider af huset. Den hyggelige stue ligger i forbindelse med alrummet – afskærmet af en teglstensmur. I de åbne rum med lysindfald fra flere ovenlysvinduer kommer PU-gulvet og Troldtekt-loftet virkelig til sin ret og bidrager til sammenhæng, hygge og velvære.
Der er prioriteret et rummeligt soveværelse med en suite badeværelse, børneafdeling med 2 store værelser, funktionsgang med stort ovenlys samt multirum. På badeværelserne er der etableret indbyggede hylder, som giver mulighed for både opbevaring og hyggelig indretning - de indeholder ligeledes store brusenicher, indbygningsarmaturer og douchetoiletter.
Grunden er udnyttet optimalt og rammesætter det gode liv i et hjem, hvor velvære, funktionalitet og æstetik er prioriteret.
Her på vores hjemmeside kan du finde mange andre inspirerende boliger, gennemtænkte grundplaner, bestille inspirationskatalog og finde kontaktoplysninger.
Vi ser frem til at hjælpe dig med at realisere din boligdrøm.
Udvalgte huse
Bliv inspireret af arkitekturer, indretning og valg af materialer til dit drømmehus. Alle huse er bygget af KFS.




































