Juni 2025
Grundplan
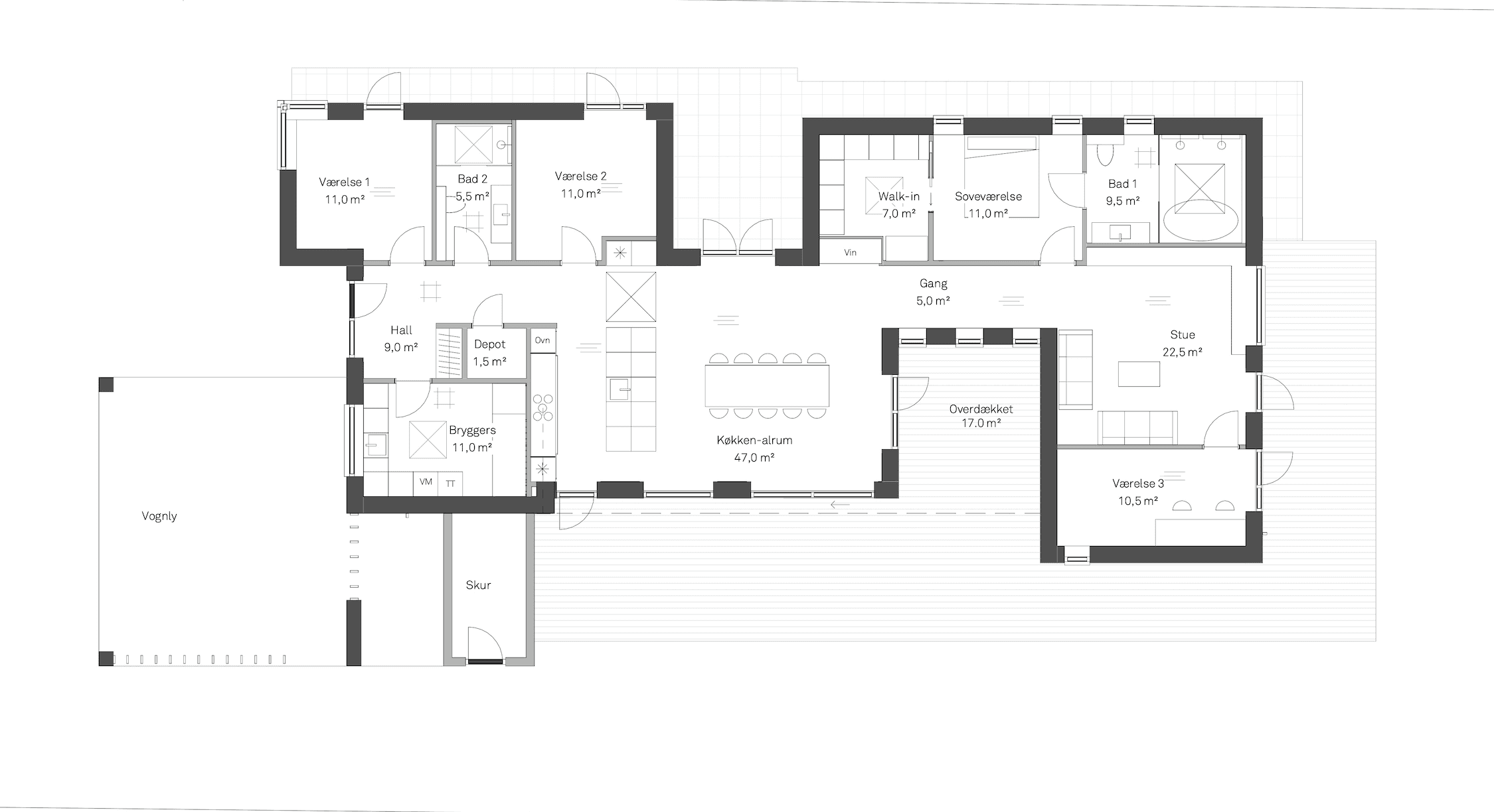
Husfakta
Bolig: 201,6 m²
Vognly: 59 m²
Overdækket: 17,5 m²
Mursten: Cold Hawaii, Egernsund
Udv. træ: Itauba og mahogni
Vinduer: Velfac 200 Energy
Ovenlys: Velux 120x120 cm og 90x90 cm
Lofter: Gipslofter med akustikfelter
Klinker: 60x60 cm Ivola Sand, Flisemagasinet
Klinker på væg: 60x120 cm Ivola Sand og Ivola Sand Grooves, Flisemagasinet
Gulv: Novego Plus Oxford
Indv. døre: Stable, Swedoor
Inventar: Svane Aalborg
Armaturer: Grohe
Toiletter: IFÖ
Afløb: Unidrain
Sag: 1567
Eksteriør galleri
Alle vores huse designes individuelt til byggegrunden og til de mennesker, der skal bo og leve i huset. Her får du inspiration til arkitekturvalg, facader, vinduer, havemiljø og udendørs materialevalg.
Interiør galleri
Der er lagt meget energi i at opnå den ønskede følelse og stemning indenfor i hvert enkelt rum. Lad dig inspirere af rumfornemmelser, materialevalg og de unikke detaljer der er valgt til dette hjem.
Denne gennemførte arkitekttegnede étplansvilla er resultatet af et tæt og kreativt samarbejde mellem bygherre og KFS Boligbyg. Her er æstetikken, materialekvaliteten og funktionaliteten i højsædet, og resultatet er et hjem, der taler helt for sig selv.
Allerede ved indgangen til boligen på 202 kvadratmeter mødes man af en dekorativ pergolaløsning over hoveddøren. De eksklusive trælameller i massiv mahogni står i smuk kontrast til de sandfarvede mursten fra Egernsund. Træet er ydermere i harmoni med FALZONAL-inddækningen i kobberbrun og hårdttræslisterne i træsorten Itauba. Velfac-vinduerne og dørene er sorte, hvilket er med til at indramme huset og give en god kontrast til de varme toner i træet og murstenen. Carporten er trukket frem fra huset og her er trælamellerne i mahogni anvendt som en luftig afskærmning mod nabohuset og familiens cykler.
Ved havesiden er der en stor træterrasse, hvorfra aftensolen kan nydes. Terrassen har fået samme transparente oliebehandling som træbeklædningen, hvilket bidrager smukt til helhedsindtrykket og bevarer den varme glød i træet. I forskydningen mellem husdelene er der blevet plads til en overdækket terrasse, så udelivet kan leves i al slags vejr.
På modsatte side er der ligeledes en forskydning i husets arkitektur, der har skabt plads til en skøn morgenterrasse. Her har familien valgt at lægge 100x100 cm udendørsfliser i en lys grålig tone, som også er flisen, der går igen i alle gangarealer.
I entréen er der opført en siddeniche, hvor mahognitræet går igen som indbygget bænk. Lysindfaldet ned gennem huset er spektakulært og gennemtænkt. Der er etableret ovenlys i den mørkere del af gangarealet, hvilket understreger lyset, der strømmer ind fra alle sider.
Fra entréen er der adgang til husets praktiske og pæne bryggers. Loftshøjden giver mulighed for opbevaring ovenpå skabene og skaber et luftigt udtryk. Ydermere er familiens to rummelige børneværelser og tilhørende badeværelse placeret i den forreste del af huset med direkte adgang fra entréen.
Boligens hjerte er det store køkken-alrum med højt til loftet og plads til familiens mange gæster. Køkkenet er opført i røget eg med en bordplade i natursten fra Stoneks, som både er varme- og syrefast. Under køkkenøen er der monteret LED orienteringslys, så børnene kan finde vej om natten. I stedet for en kaffestation foreslog KFS’ arkitekt, at de fik lavet en minibar, da familien holder af at samle venner og familie til gode drinks. Familien har derfor også valgt to opvaskemaskiner, så de slipper for at have opvask stående på bordet, når de samles.
Fra køkkenet fører en lille mellemgang ned til stuen, som er placeret i den bagerste del af boligen. Her er loftet lavere, hvilket skaber en hyggelig og omfavnende atmosfære, der inviterer til ro og afslapning. Fra stuen er der adgang til et mindre hjemmekontor.
I voksenafdelingen er der prioriteret et soveværelse med tilhørende walk-in. Her er der valgt et blødt gulvtæppe, som matcher farven på fliserne i badeværelset. Det rummelige badeværelse emmer af spa og velvære. Her er dobbeltbruseniche og et smukt badekar med indbygningsarmaturer placeret under et stort ovenlysvindue. Shampoohylden er muret i hele brusenichens bredde, hvilket giver et strømlinet og helstøbt udtryk. Fliserne på denne væg varierer fra de øvrige fliser ved at være rillede, hvilket giver struktur og skaber en skøn taktilitet. Det elegante røgede egetræ går igen i badeværelsesmøblementet på begge badeværelser og bidrager til den gennemførte arkitektoniske perle, som familien har fået opført.
For os handler det om at skabe et hjem designet til den enkle familie, hvor den hverdag de ønsker sig, får de bedste forudsætninger for at udfolde sig. Her på hjemmesiden kan du gå på opdagelse i tidligere Månedens huse, hvor vi har været så heldige at få lov at besøge nogle af de hjem, vi har fået lov at opføre.
Udvalgte huse
Bliv inspireret af arkitekturer, indretning og valg af materialer til dit drømmehus. Alle huse er bygget af KFS.



























