Juli 2025
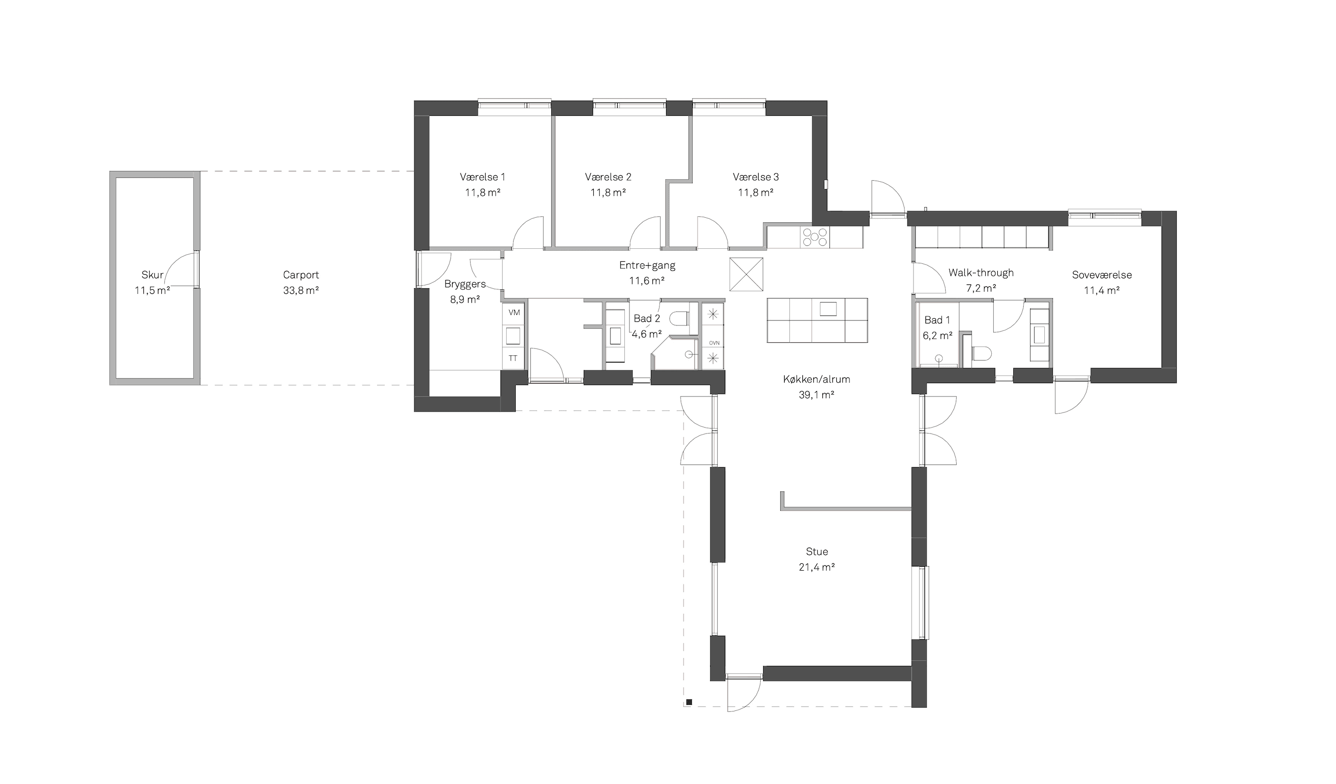
Grundplan
Husfakta
Bolig: 180 m²
Vognly: 35 m² inkl. 15 m² skur
Overdækket: 13 m²
Mursten: Laika, Strøjer Tegl
Udv. træ: Træprofiler midterspor, Kjellerup Træ
Vinduer: Velfac 200 Energy
Ovenlys: VELUX 90x90 cm
Lofter: Ultrafin træbeton, Troldtekt
Klinker: 60x60 cm Space Light
Gulv: Vinylgulv, Brighton, NovegoPlus
Indv. døre: Stable, Swedoor
Inventar: Invita Aalborg
Sag: 1573
Eksteriør galleri
Alle vores huse designes individuelt til byggegrunden og til de mennesker, der skal bo og leve i huset. Her får du inspiration til arkitekturvalg, facader, vinduer, havemiljø og udendørs materialevalg.
Interiør galleri
Der er lagt meget energi i at opnå den ønskede følelse og stemning indenfor i hvert enkelt rum. Lad dig inspirere af rumfornemmelser, materialevalg og de unikke detaljer der er valgt til dette hjem.
Denne bolig er en af vores AllinONE projekter. En komplet løsning samlet i et stilrent funkishus med dobbelt carport og integreret skur. Projektet har været et tæt samarbejde mellem KFS Boligbyg og den lokale ejendomsmægler. Planløsningen på 180 kvadratmeter er gennemtænkt, og gennem hele huset går æstetik og funktionalitet hånd i hånd.
Allerede ved ankomsten fornemmes husets kvaliteter. Sammensætningen af facadens materialer komplementerer hinanden. Her møder de lyse mursten med beige og hvide nuancer kontrast fra den sorte sterninddækning. De varmglødede træprofiler på facaden ved de overdækkede arealer binder det hele sammen og gør huset arkitektonisk indbydende.
En bred indkørsel fører op til carporten, hvor der er god plads til både bilparkering og opbevaring. Fra carporten er der direkte adgang til husets bryggers, hvilket er praktisk i hverdagen. Husets lyse entré åbner op til boligen, hvor familien har indrettet et skønt hjem med sans for den æstetiske sammenhæng. I hele boligen er materialevalget gennemgående, med ensartede overflader og elegante løsninger, hvor de store vinduespartier og ovenlysvinduer sørger for et naturligt lysindfald og en let og luftig rumfornemmelse.
Hjemmets hjerte er det åbne køkken-alrum, der er skabt med fokus på plads til at samle hele familien og det funktionelle aspekt i hverdagen. Her er der god plads omkring spisebordet og direkte adgang til begge terrasser og haven. Materialevalget i køkkenet trækker referencer fra facadesammensætning, hvor de beige låger kombineret med egetræskorpus og -fronter møder kontrasten fra de sorte sokler og bordpladen. Efter nøgleoverdragelsen fik familien køkkenfirmaet til at levere en kaffestation, hvorfra en lækker morgenkaffe kan laves. Så selvom det var et færdigbygget hus, hvor familien ikke havde været med i byggeprocessen, er det nemt at sætte et personligt præg og tilpasse det fuldkommen til egne ønsker og behov.
Køkken-alrummet ligger i direkte forbindelse til opholdsstuen, men er samtidig adskilt af et lille gangareal, der gør at stuen føles mere omsluttende og rolig. Her flyder dagslyset frit og skaber en rar atmosfære. Også herfra er der adgang til haven, som ligger ugeneret i bunden af en villavej og indbyder til leg, afslapning og hyggelige stunder under åben himmel.
Boligens planløsning er ideelt for familien med behov for både fællesrum og mere private zoner. Børneafdelingen rummer tre rummelige værelser samt et badeværelse. I husets anden ende er voksenafdelingen placeret. Her er et walk-through, som fører ind til soveværelset med eget badeværelse.
Alt i alt en gennemført bolig, hvor arkitektur, funktion og materialevalg går op i en højere enhed. Et hjem, hvor hverdagen får de bedste betingelser, og hvor familien har indrettet sig personligt med plads til, at både store og små øjeblikke kan udfolde sig.
Kunne du tænke dig at høre mere om vores AllinONE projekter, kan du læse mere her. Du er også velkommen til at kontakte vores byggerådgiver Jonas Oelsen på 5377 2181.
Udvalgte huse
Bliv inspireret af arkitekturer, indretning og valg af materialer til dit drømmehus. Alle huse er bygget af KFS.





















