August 2025
Grundplan
Husfakta
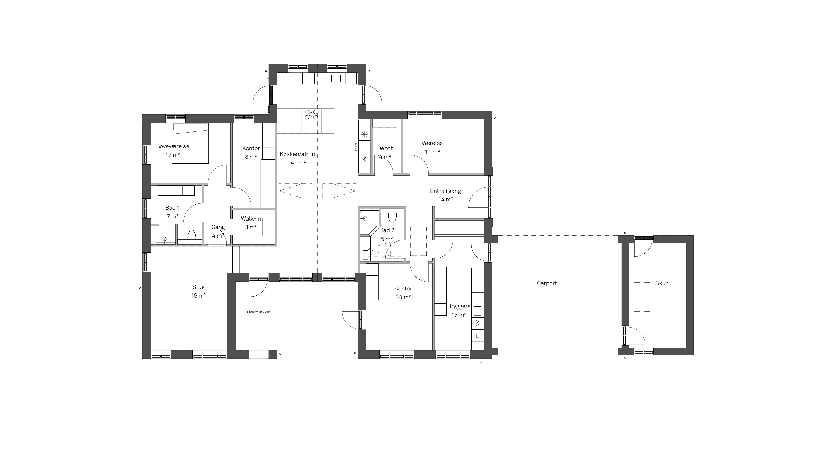
Bolig: 196 m²
Vognly: 38 m²
Overdækket: 8 m²
Mursten: Bronsgroen, Egernsund Wienerberger
Vinduer: Outline bondehusvinduer med 4-6 glasfelter
Ovenlys: Velux 140x78 cm
Lofter: Troldtekt ultrafin, hvid
Klinker: 60x60 cm Fossil Bruno
Gulv: Eg Modena
Indv. Døre: massive døre, Swedoor
Inventar: Invita Aalborg
Armaturer: Hans Grohe
Toiletter: Duravit
Sag: 1505
Eksteriør galleri
Alle vores huse designes individuelt til byggegrunden og til de mennesker, der skal bo og leve i huset. Her får du inspiration til arkitekturvalg, facader, vinduer, havemiljø og udendørs materialevalg.
Interiør galleri
Der er lagt meget energi i at opnå den ønskede følelse og stemning indenfor i hvert enkelt rum. Lad dig inspirere af rumfornemmelser, materialevalg og de unikke detaljer der er valgt til dette hjem.
I denne måned besøger vi en charmerende bolig, hvor naturen har fået lov til at udgøre det bærende element i den arkitektoniske stil. Huset er et tidløst miks af moderne idyl og klassisk elegance, som naturligt blender ind i det omkringliggende skovområde.
Familien ønskede det modsatte af den mere typiske nybyggede bolig i dag. De ønskede sig detaljer i murværket, klassiske bondehusvinduer og et sadeltag med loft til kip. De ønskede sig samtidig en lidt vildtvoksende skovhave i stedet for den mere stringent prydhave.
Alt dette træder tydeligt frem ved ankomsten til den 196 kvadratmeter store bolig, hvor vognlyet er en integreret del af arkitekturen. Her taler murværket for sig selv med fremspring i gesims og som indramning af det elegante dørparti. Fugefarven og murstenen er valgt i samme nuance, hvilket får murværket til at træde tydeligere frem i samspillet med de sorte detaljer fra tagsten, vinduer og døre.
Grunden ligger i et skovområde, men skoven var desværre blevet fældet før, at grundene blev udstykket, så familiens fornemmeste opgave har været at genskabe og etablere en skovhave. De har prioriteret at få plantet fuldvoksne træer, så beplantningen hurtigt blev tæt, således udearealet i dag er ugeneret.
Hele vejen igennem etableringen af udemiljøet har familien haft øje for at få huset til at smelte ind i omgivelserne. I stedet for almindelige betonfliser i indkørslen fandt de frem til en charmerende græsarmeringsflise, der minder om gammeldags knoldebrobelægning. Græsarmeringsflisen lægges modsat i felter med en plan og kørefast overflade, der gør dem praktiske at betræde.
Gennem det store symmetriske indgangsparti er en rummelig og lys entré placeret. Entréen munder ud i to fordelingsgange, hvor den ene fører ned til husets bryggers, som er på hele 15 kvadratmeter. Derudover rummer fordelingsgangene også to værelser, et kontor og et badeværelse.
Boligens samlingspunkt er det store og skønne køkken-alrum med loft til kip, hvor den udvendige mursten er ført med ind på bagvæggen i køkkenet. Sammen med fyldningslågerne på køkkenfronterne understreger det den klassiske og traditionelle stil, der tilføjer elegance og charme til det primære opholdsrum.
Et par trin op fra køkken-alrummet er stuen placeret. Det giver en stue med mindre loftshøjde, der inviterer til hyggelige og afslappende stunder. Og alle steder øjet kan se ud, er der grønne træer at betragte. De lyse og hvide flader som er gennemgående i boligen, understreger samtidig udemiljøet og lader det på naturlig vis flytte med ind.
Fra stuen er voksenafdelingen placeret med en god fordeling mellem soveværelse, badeværelse, walk-in og et ekstra kontor.
Lad dig inspirere af Månedens hus og de tidligere Månedens huse, vi har være så heldige at få lov at besøge efter nøgleoverdragelsen. Vi er vilde med at se, hvordan hver familie har gjort deres nye bolig til deres helt eget hjem.
Udvalgte huse
Bliv inspireret af arkitekturer, indretning og valg af materialer til dit drømmehus. Alle huse er bygget af KFS.

























