Oktober 2025
Grundplan
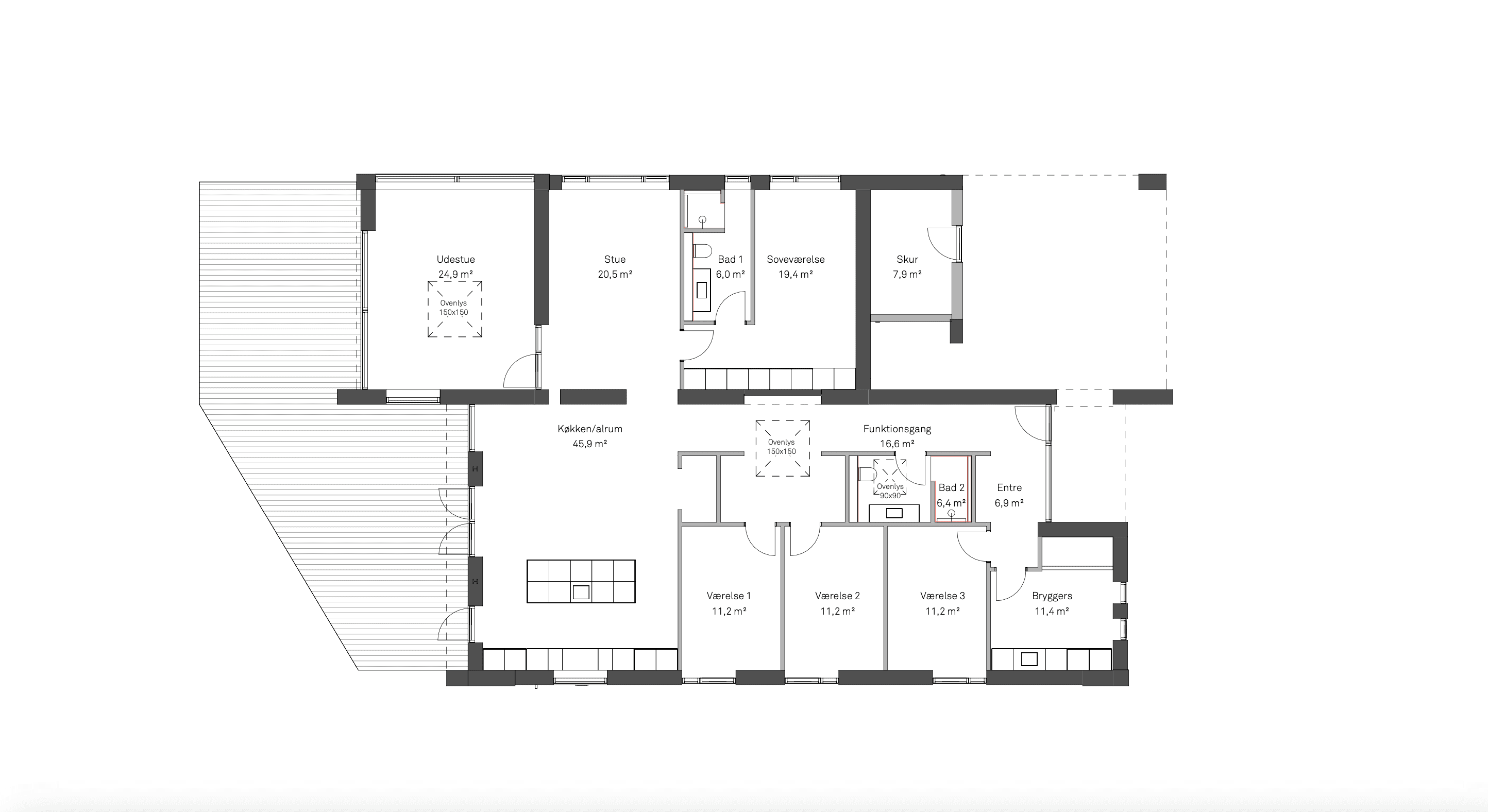
Husfakta
Bolig: 201 m²
Udestue: 30 m²
Vognly + skur: 50 m²
Overdækket: 12 m²
Mursten: Bronsgroen, Egernsund Wienerberger
Træ: Abodo fra Frøslev Træ
Vinduer: Velfac 200E, Granit 80/sort
Ovenlys: Velux, solcelledrevne
Lofter: Troldtekt, Ultrafin Lys Natur
Klinker: Wholestone Sand
Gulv: Novego Plus Birmingham
Indv. døre: Stable, Swedoor
Inventar: Invita Aalborg
Armaturer: Hansgrohe og Quooker
Toiletter: Ifö Spira Modern
Afløb: Unidrain, Highline Custom
Sag: 1607
Eksteriør galleri
Alle vores huse designes individuelt til byggegrunden og til de mennesker, der skal bo og leve i huset. Her får du inspiration til arkitekturvalg, facader, vinduer, havemiljø og udendørs materialevalg.
Interiør galleri
Der er lagt meget energi i at opnå den ønskede følelse og stemning indenfor i hvert enkelt rum. Lad dig inspirere af rumfornemmelser, materialevalg og de unikke detaljer der er valgt til dette hjem.
På dette års Byg Nordjysk byder vi velkommen indenfor i en drømmebolig med en stærk arkitektonisk profil. Huset er fuldmuret med fokus på at forene funktionalitet og lækre detaljer i en smuk arkitektur - et kvalificeret bud på det moderne hjem.
Huset består af 201 m² veldisponeret bolig udført med høj finish og gennemtænkte løsninger. Hertil kommer en stor lækker udestue som emmer af æstetik og hygge. Huset er udført i en smuk kombination af træ og lyse mursten med sort tag, sort alu-beklædning og sorte vinduer. Husets gennemgående ryg giver bygningskroppen et interessant, helstøbt og anderledes udtryk.
Vognly og skur er integreret i bygningen og bidrager til den samlede oplevelse, når du ankommer til huset. Facadedøren er placeret i en overdækning, der ligger i direkte forbindelse med vognlyet.
Grunden på 1040 m² er udnyttet optimalt og bidrager til at rammesætte livet i et hjem, hvor rummelighed, velvære, funktionalitet og æstetik er højt prioriteret.
I entréen har du direkte kig gennem huset til den vestvendte træterrasse. Det føles åbent og indbydende. Funktionsgangen har en gennemgående træbeklædt væg i samme profil som udvendigt, som er kombineret med markante detaljer i facadesten. Funktionsgangen rummer integreret kontor/krea/opbevaringsplads med højt til loftet og lækkert lysindfald fra et stort ovenlys.
Boligen indeholder et stort køkken-alrum med højt til loftet og udgang til terrassen. Køkkenet er holdt i delikat sandfarvet samt mørk eg og rummer en skøn niche til vin- eller kaffebar. Stuen ligger i åben forbindelse med alrummet, men er samtidig afskærmet af en smuk muret facadestensvæg, som giver karakter til begge rum. I stuen har vi vægtet en hyggelig og varm atmosfære med lavere loftshøjde end i køkken-alrum.
Fra stuen er der adgang til en stor integreret udestue, hvor familien kan samles og tage forskud på foråret eller nyde en forlænget efterårssæson. Den store udestue har lysindfald fra tre sider blandt andet gennem en stor skydedør og fra himlen via et stort ovenlys. Vinduerne i udestuen har egetræsrammer indvendigt.
Boligen rummer desuden en lækker soveværelsesafdeling med læsekrog, masser af skabsplads og en suite badeværelse. Dertil kommer tre gode værelser og et lyst og rummeligt bryggers med plads til tørrestativ eller barnevogn.
Vi glæder os til at byde dig velkommen i vores skønne udstillingshus og ser frem til at hjælpe dig med at realisere din boligdrøm.
Udvalgte huse
Bliv inspireret af arkitekturer, indretning og valg af materialer til dit drømmehus. Alle huse er bygget af KFS.



























