December 2025
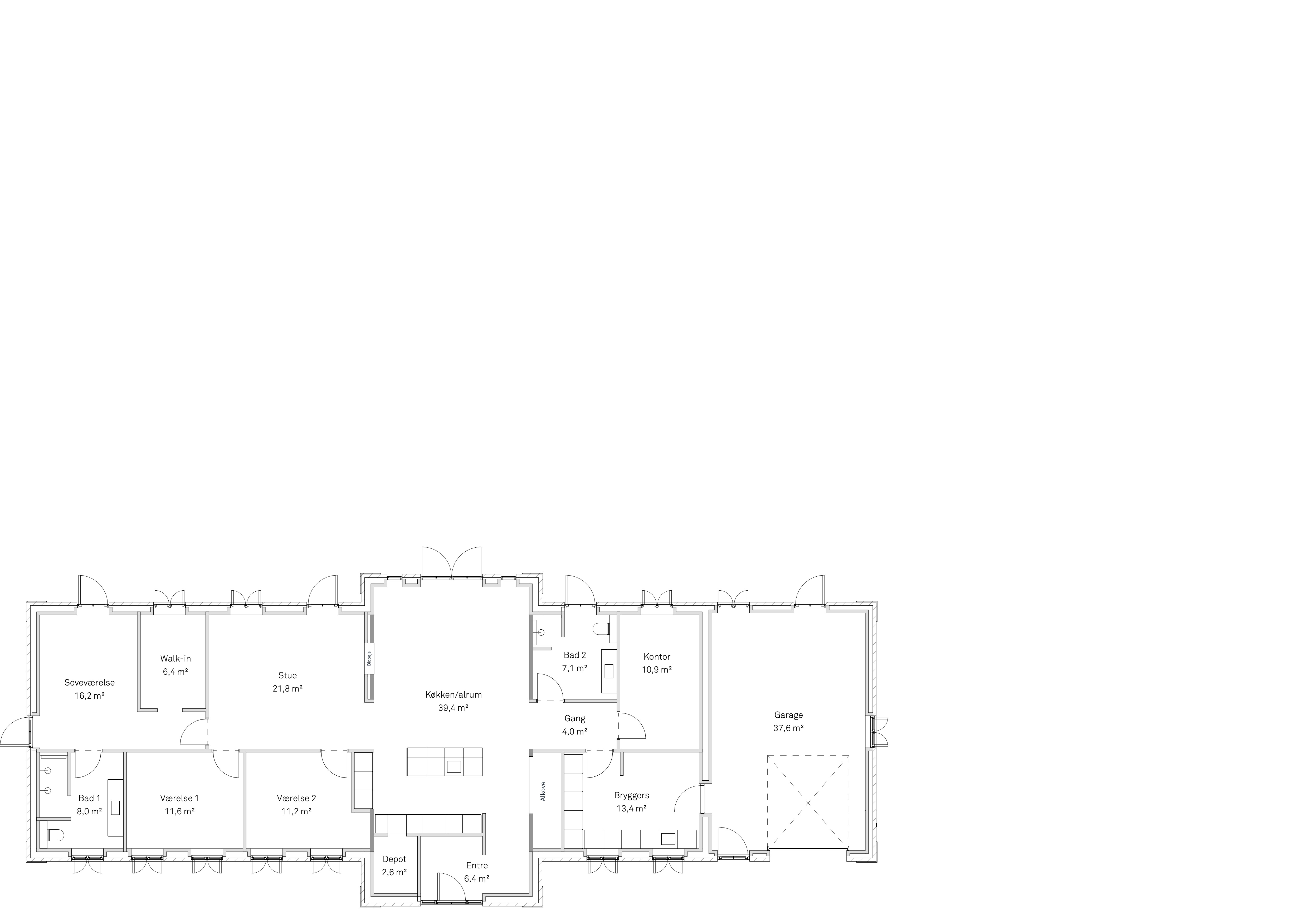
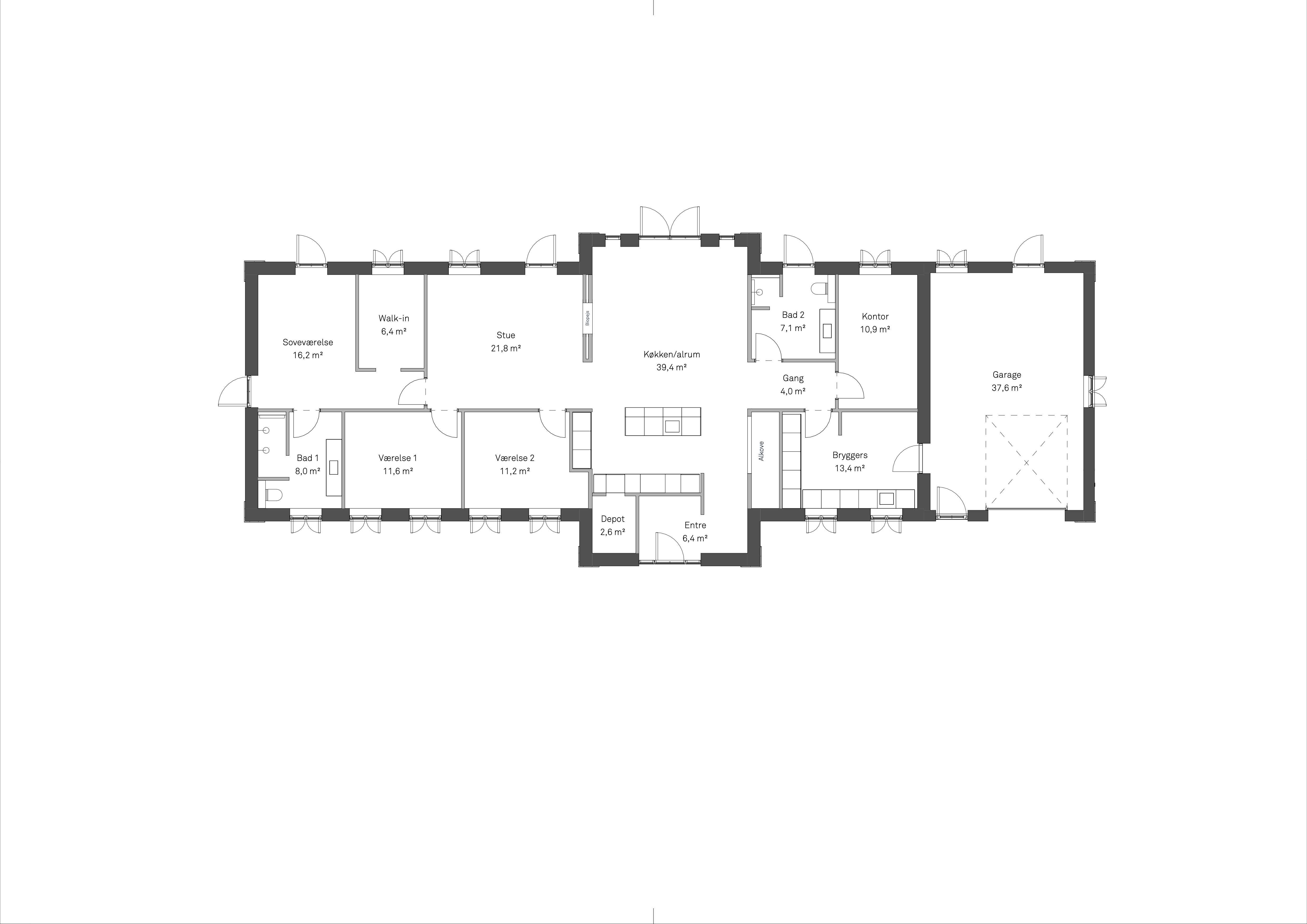
Grundplan
Husfakta
Bolig: 195 m²
Garage: 45 m²
Mursten: Prima Meda RT 485, Randers Tegl
Vinduer: Velfac Classic
Lofter: Troldtekt ultrafin, hvid
Klinker: Soapstone White
Gulv: Vinylgulv Brighton, Novego+
Indv. døre: Stable, Swedoor
Inventar: Invita, Aalborg
Armaturer: Hans Grohe
Toiletter: Duravit Starck 3
Afløb: Unidrain
Biopejs: Decoflame
Sag: 1547
Eksteriør galleri
Alle vores huse designes individuelt til byggegrunden og til de mennesker, der skal bo og leve i huset. Her får du inspiration til arkitekturvalg, facader, vinduer, havemiljø og udendørs materialevalg.
Interiør galleri
Der er lagt meget energi i at opnå den ønskede følelse og stemning indenfor i hvert enkelt rum. Lad dig inspirere af rumfornemmelser, materialevalg og de unikke detaljer der er valgt til dette hjem.
Ved en frugtplantage i Nordjylland har vi opført familiens nye hjem, som et tidløst miks af moderne landidyl og klassisk elegance. Her er der gjort ekstra meget ud af arkitekturen og murværket, som bidrager til et betagende førstehåndsindtryk. De symmetriske linjer og æstetiske valg er ligeledes ført med ind i boligen, hvor der er kræset for hver en detalje.
Ved ankomsten til boligen bliver man mødt af en gennemført klassiske arkitektur. Det store buede indgangsparti giver en storslået velkomst. Murværket taler for sig selv med fremspring i gesims og pilastrene i alle husets hjørner. De flotte detaljer og den matchende mursten og fugefarve får yderligere murværket til at træde frem i samspillet med de sorte vinduesrammer, tagrenderne og taget.
Bemærk hvordan symmetrien har været omdrejningspunktet i designprocessen, hvilket især fremgår af havesiden, hvor det buede midterparti med høje, smalle vinduer til hver side, og de to terrassedøre i hver sin længe, giver en æstetisk ensartethed, som er klassisk og elegant. Hele vejen rundt om huset er der etableret en stenterrasse, der bidrager til herregårdsstemningen. Herfra kan familien nyde udsigten til deres egen frugtplantage med æblelunden i baghaven.
Indvendigt fordeler huset sig over 195 kvadratmeter i kun ét plan. Lysspillet, der møder gæsterne i entréen, er enestående og magisk. Det nærmest danser på væggene gennem de små sprosser i vinduerne. Her får man straks fornemmelsen af et hjem, hvor æstetik og funktion går op i en højere enhed.
Husets midterste del hæver sig elegant over de to længer og skaber en naturlig rummelighed, der mærkes allerede i entréen. Her løfter loftet sig højt op og giver et generøst førstehåndsindtryk. Lige bag entréen åbner hjemmet sig op og byder indenfor i husets hjerterum, køkken-alrum og spisestue. Til venstre for køkkenet er der blevet plads til en dyb alkove, hvor de to små børn kan lege, mens madlavningen er i fuld gang.
Længen til højre rummer et gæstebadeværelse holdt i lyse toner, et kontor og husets rummelige bryggers. Fra bryggerset er der adgang til en integreret dobbeltgarage, som blandt andet bruges til motorcykelværksted.
Til modsatte side er stuen placeret med lavere til loftet, hvilket skaber en hyggelig atmosfære, der med sine komfortable siddemøbler inviterer til ro og afslapning.
Fra stuen er der direkte adgang til to fine børneværelser og forældreafdelingen med soveværelse, eget badeværelse og et stort walk-in. En separat forældreafdeling skaber rum til at trække sig lidt tilbage og prioritere sig selv og hinanden. Her er indretningen omfavnende, skabt ud fra en blid og jordnær farvepalette, hvor alle vægge er malet i en anden farve end hvid.
For os handler det om at skabe et hjem designet til den enkle familie, hvor den hverdag de ønsker sig, får de bedste forudsætninger for at udfolde sig.
Udvalgte huse
Bliv inspireret af arkitekturer, indretning og valg af materialer til dit drømmehus. Alle huse er bygget af KFS.


























