Grundplan
Husfakta
Bolig: 160 m²
Vognly + skur: 42 m²
Overdækket: 2,5 m²
Mursten: RT 452 Gotik, Randers Tegl
Udv. træ: Brunimprægneret profil 867, Frøslev Træ
Vinduer: Velfac 200 Energy
Lofter: Troldtekt Ultrafin, hvid
Klinker: 60x60 cm Concrete Mud, Mosaikhjørnet
Gulv: Gran Via Tritty, Eg Portland Bernstein, Haro
Indv. Døre: Stable, Swedoor
Armaturer: Hans Grohe og Quooker
Toiletter: ME by Starck, Duravit
Afløb: Unidrain
Sag: 1391
Eksteriør galleri
Alle vores huse designes individuelt til byggegrunden og til de mennesker, der skal bo og leve i huset. Her får du inspiration til arkitekturvalg, facader, vinduer, havemiljø og udendørs materialevalg.
Interiør galleri
Der er lagt meget energi i at opnå den ønskede følelse og stemning indenfor i hvert enkelt rum. Lad dig inspirere af rumfornemmelser, materialevalg og de unikke detaljer der er valgt til dette hjem.
I denne månedens hus er landskabet og de store træer i baghaven tænkt med ind i designet af boligen. Retro-arkitekturen er opbygget som et bredt længehus med sadeltag uden udhæng, hvilket giver et strømlinet arkitektonisk udtryk. Felterne med træ bryder de store murstensflader og giver huset et varmere islæt.
Indvendigt er arkitekturen rummelig med sine skrå lofter, der samtidig bidrager med en hyggelig og omfavnede atmosfære. Huset er grundmuret, hvilket vil sige, at både den udvendige mur og de indvendige vægge er muret op i teglsten. Det giver en taktilitet, der tilfører rummene et gedigent udtryk, der bidrager med æstetisk kant til indretningen, som er en miks af moderne og retro.
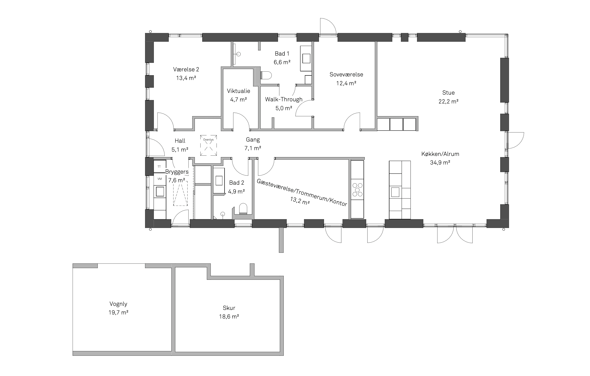
Når du træder indenfor i husets entré, får du en fornemmelse af rummelighed og her opleves den gode loftshøjde. En integreret garderobeløsning er at finde samt adgang til et teenage-værelse og et gæsteværelse samt badeværelse. Familien har kun et hjemmeboende barn, så de har bygget huset til deres behov på byggetidspunktet.
I stedet har de prioriteret kvadratmeterne i husets primære leverum, køkken-alrummet. Her er loft til kip, og det er her familien tilbringer det meste af sin tid. Det store vinduesparti til gulv i endegavlen giver frit udsyn til den frodige have, der udfolder sig lige udenfor. Fra køkkenet er der på den ene side adgang til forældreafdeling med soveværelse og badeværelse, mens en stor og lækker træterrasse, inddelt i flere zoner udfolder, sig til den anden side.
Stuen er placeret i åben forbindelse med spisepladsen, men sofaen har fået sit eget indhak, hvilket skaber en hyggelig zone afskærmet fra køkkenet. Hjørnevinduet og de sorte vinduesrammer indrammer udsigten. Familien har gjort ekstra meget ud af haven, hvor der både er udebruser og bålplads at finde.
Udvalgte huse
Bliv inspireret af arkitekturer, indretning og valg af materialer til dit drømmehus. Alle huse er bygget af KFS.



























